Rif: P1_CL_PA
CIVITANOVA MARCHE
MACERATA
CIVITANOVA MARCHE CENTRALISSIMO VENDESI GRANDE APPARTAMENTO CON POSTO AUTO
Proponiamo in vendita un'ampia e luminosa unità abitativa situata al primo piano di un elegante condominio in pieno centro a Civitanova Marche, con affaccio su una delle vie principali. La posizione strategica a due passi da Piazza XX Settembre, dal Corso Umberto I e a 350 metri dal mare, garantisce un facile accesso a tutti i servizi principali, negozi, scuole, mezzi pubblici e principali punti di interesse e svago.
L'immobile, che vanta finiture eleganti e materiali di alta qualità, è perfetto per chi desidera un'abitazione dallo stile sofisticato senza rinunciare alla comodità e alla funzionalità.
Caratteristiche principali:
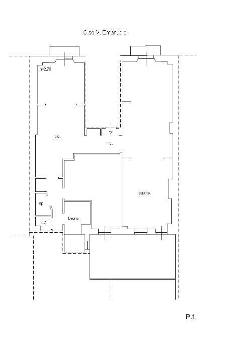
• Superficie totale: 140 mq circa
• Finiture di pregio in tutta la casa: pavimenti in legno pregiato, porte interne di alta qualità e dettagli architettonici curati che conferiscono un'atmosfera esclusiva e raffinata.
• Piano primo:
o Ingresso luminoso con dettagli eleganti
o Cucina abitabile con finiture moderne e materiali resistenti
o Soggiorno spazioso, perfetto per ospitare e rilassarsi, con pavimentazione e arredi di design
o 2 camere matrimoniali ampie e confortevoli, con pavimenti in parquet pregiato
o Bagno con rivestimenti di alto livello e sanitari moderni
o Ripostiglio
o 1 terrazzo molto ampio di 20 mq, e 2 balconi con affaccio diretto sulla via principale
• Piano terra: Corte esclusiva di proprietà adibita a posto auto
Un'opportunità unica per chi cerca un'abitazione funzionale e ben posizionata nel cuore di Civitanova Marche. Non perdere l'occasione di vivere in un contesto tranquillo, ma a pochi passi dal centro. Contattaci per maggiori informazioni e per organizzare una visita!
Trattativa riservata
EDILCRISMA AGENZIA IMMOBILIARE CORSO VITTORIO EMANUELE 37-39 62012 CIVITANOVA MARCHE (MC) 329.9082575 335.7203941 0733.817836 agenziaedilcrisma@gmail.com www.edilcrisma.it
Proponiamo in vendita un'ampia e luminosa unità abitativa situata al primo piano di un elegante condominio in pieno centro a Civitanova Marche, con affaccio su una delle vie principali. La posizione strategica a due passi da Piazza XX Settembre, dal Corso Umberto I e a 350 metri dal mare, garantisce un facile accesso a tutti i servizi principali, negozi, scuole, mezzi pubblici e principali punti di interesse e svago.
L'immobile, che vanta finiture eleganti e materiali di alta qualità, è perfetto per chi desidera un'abitazione dallo stile sofisticato senza rinunciare alla comodità e alla funzionalità.
Caratteristiche principali:
• Superficie totale: 140 mq circa
• Finiture di pregio in tutta la casa: pavimenti in legno pregiato, porte interne di alta qualità e dettagli architettonici curati che conferiscono un'atmosfera esclusiva e raffinata.
• Piano primo:
o Ingresso luminoso con dettagli eleganti
o Cucina abitabile con finiture moderne e materiali resistenti
o Soggiorno spazioso, perfetto per ospitare e rilassarsi, con pavimentazione e arredi di design
o 2 camere matrimoniali ampie e confortevoli, con pavimenti in parquet pregiato
o Bagno con rivestimenti di alto livello e sanitari moderni
o Ripostiglio
o 1 terrazzo molto ampio di 20 mq, e 2 balconi con affaccio diretto sulla via principale
• Piano terra: Corte esclusiva di proprietà adibita a posto auto
Un'opportunità unica per chi cerca un'abitazione funzionale e ben posizionata nel cuore di Civitanova Marche. Non perdere l'occasione di vivere in un contesto tranquillo, ma a pochi passi dal centro. Contattaci per maggiori informazioni e per organizzare una visita!
Trattativa riservata
EDILCRISMA AGENZIA IMMOBILIARE CORSO VITTORIO EMANUELE 37-39 62012 CIVITANOVA MARCHE (MC) 329.9082575 335.7203941 0733.817836 agenziaedilcrisma@gmail.com www.edilcrisma.it
Consistenze
| Descrizione | Superficie | Sup. comm. |
|---|---|---|
| Principali | ||
| Immobile - 1° piano | 140 Mq | 140 Mqc |
| Terrazza - 1° piano | 20 Mq | 10 Mqc |
| Balcone - 1° piano | 3 Mq | 2 Mqc |
| Posto auto | 40 Mq | 20 Mqc |
| Totale | 172 Mqc | |
