Rif: p1_185
CIVITANOVA MARCHE
MACERATA
Proponiamo in vendita appartamento di nuova costruzione facente parte di palazzina di nuova realizzazione posizionata in zona centro-sud in posizione servita e prossima ai principali centri di interesse e comodissima per raggiungere a piedi il lungomare sud.
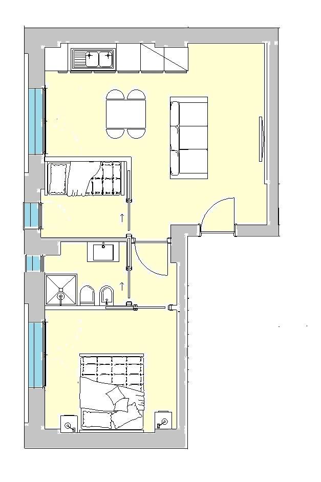
L'unità è posta al piano primo e si compone di soggiorno con angolo cottura, camera principale, cameretta-studio e bagno, Interni personalizzabili su ampia scelta di capitolato. L'edificio verrà realizzato con tecniche innovative e performanti dal punto di vista energetico. Per maggiori informazioni o visite in cantiere contattare i numeri 0733.817836 329.9082575 335.7203941 EDILCRISMA AGENZIA IMMOBILIARE CORSO VITTORIO EMANUELE 37-39 62012 CIVITANOVA MARCHE (MC) www.edilcrisma.it agenziaedilcrisma@gmail.com
L'unità è posta al piano primo e si compone di soggiorno con angolo cottura, camera principale, cameretta-studio e bagno, Interni personalizzabili su ampia scelta di capitolato. L'edificio verrà realizzato con tecniche innovative e performanti dal punto di vista energetico. Per maggiori informazioni o visite in cantiere contattare i numeri 0733.817836 329.9082575 335.7203941 EDILCRISMA AGENZIA IMMOBILIARE CORSO VITTORIO EMANUELE 37-39 62012 CIVITANOVA MARCHE (MC) www.edilcrisma.it agenziaedilcrisma@gmail.com
Consistenze
| Descrizione | Superficie | Sup. comm. |
|---|---|---|
| Principali | ||
| Immobile - 1° piano | 53 Mq | 53 Mqc |
| Totale | 53 Mqc | |
